Description
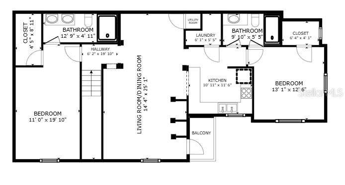
Welcome to a beautiful & immaculate 2-bedroom, 2-bath condo with a private 1-car garage offers the perfect blend of comfort, convenience, and style. Roof (2021) & AC (2018). Located in the heart of Lake Mary/Heathrow, the home is zoned for top-rated schools, including Heathrow Elementary and Lake Mary High School, making it an ideal choice for families. The updated kitchen boasts quartz countertops, brand-new stainless steel appliances, luxury vinyl flooring, custom blinds, and ample storage. From the screened patio, enjoy your morning coffee. Step inside to find a beautifully designed, move-in-ready interior featuring high-end finishes such as designer light fixtures, chandeliers, and custom plantation shutters. The open-concept living area is enhanced by durable laminate flooring throughout the living room and staircase, with tile in the bathrooms. Recent updates include a new roof (2021), new disposal, and an updated security system for peace of mind. The A/C was installed in 2018, ensuring both comfort and efficiency. The attached 1-car garage offers convenience and additional storage. Located within a secure, gated community, residents enjoy access to a clubhouse with a fitness center, two pools in the community center , spa, tennis courts, and direct access to the Seminole Wekiva Bike Trailperfect for outdoor enthusiasts. Landscaping and trash concierge service (picked up 7 days a week) are included for a true low-maintenance lifestyle. Enjoy effortless access to major highways, including I-4, as well as upscale shopping, dining, and entertainment just minutes away. Orlando's theme parks, the beach, and the airport are all within a 45-minute drive. Whether you're a first-time homebuyer or looking for a second home in sunny Florida, this condo offers an unbeatable opportunity to own in one of Central Florida's most sought-after areas.
-
2BEDS
-
0.05ACRES
-
2BATHS
-
01/2 BATHS
-
1,182SQFT
-
$202$/SQFT
School Ratings & Info
Description
Welcome to a beautiful & immaculate 2-bedroom, 2-bath condo with a private 1-car garage offers the perfect blend of comfort, convenience, and style. Roof (2021) & AC (2018). Located in the heart of Lake Mary/Heathrow, the home is zoned for top-rated schools, including Heathrow Elementary and Lake Mary High School, making it an ideal choice for families. The updated kitchen boasts quartz countertops, brand-new stainless steel appliances, luxury vinyl flooring, custom blinds, and ample storage. From the screened patio, enjoy your morning coffee. Step inside to find a beautifully designed, move-in-ready interior featuring high-end finishes such as designer light fixtures, chandeliers, and custom plantation shutters. The open-concept living area is enhanced by durable laminate flooring throughout the living room and staircase, with tile in the bathrooms. Recent updates include a new roof (2021), new disposal, and an updated security system for peace of mind. The A/C was installed in 2018, ensuring both comfort and efficiency. The attached 1-car garage offers convenience and additional storage. Located within a secure, gated community, residents enjoy access to a clubhouse with a fitness center, two pools in the community center , spa, tennis courts, and direct access to the Seminole Wekiva Bike Trailperfect for outdoor enthusiasts. Landscaping and trash concierge service (picked up 7 days a week) are included for a true low-maintenance lifestyle. Enjoy effortless access to major highways, including I-4, as well as upscale shopping, dining, and entertainment just minutes away. Orlando's theme parks, the beach, and the airport are all within a 45-minute drive. Whether you're a first-time homebuyer or looking for a second home in sunny Florida, this condo offers an unbeatable opportunity to own in one of Central Florida's most sought-after areas.
Related Properties
© 2025 My Florida Regional MLS DBA Stellar MLS. All rights reserved. All listings displayed pursuant to IDX. All listing information is deemed reliable but not guaranteed and should be independently verified through personal inspection by appropriate professionals. Listings displayed on this website may be subject to prior sale or removal from sale; availability of any listing should always be independently verified. Listing information is provided for consumers personal, non-commercial use, solely to identify potential properties for potential purchase; all other use is strictly prohibited and may violate relevant federal and state law. Data last updated 2025-11-10T19:44:03.373.
